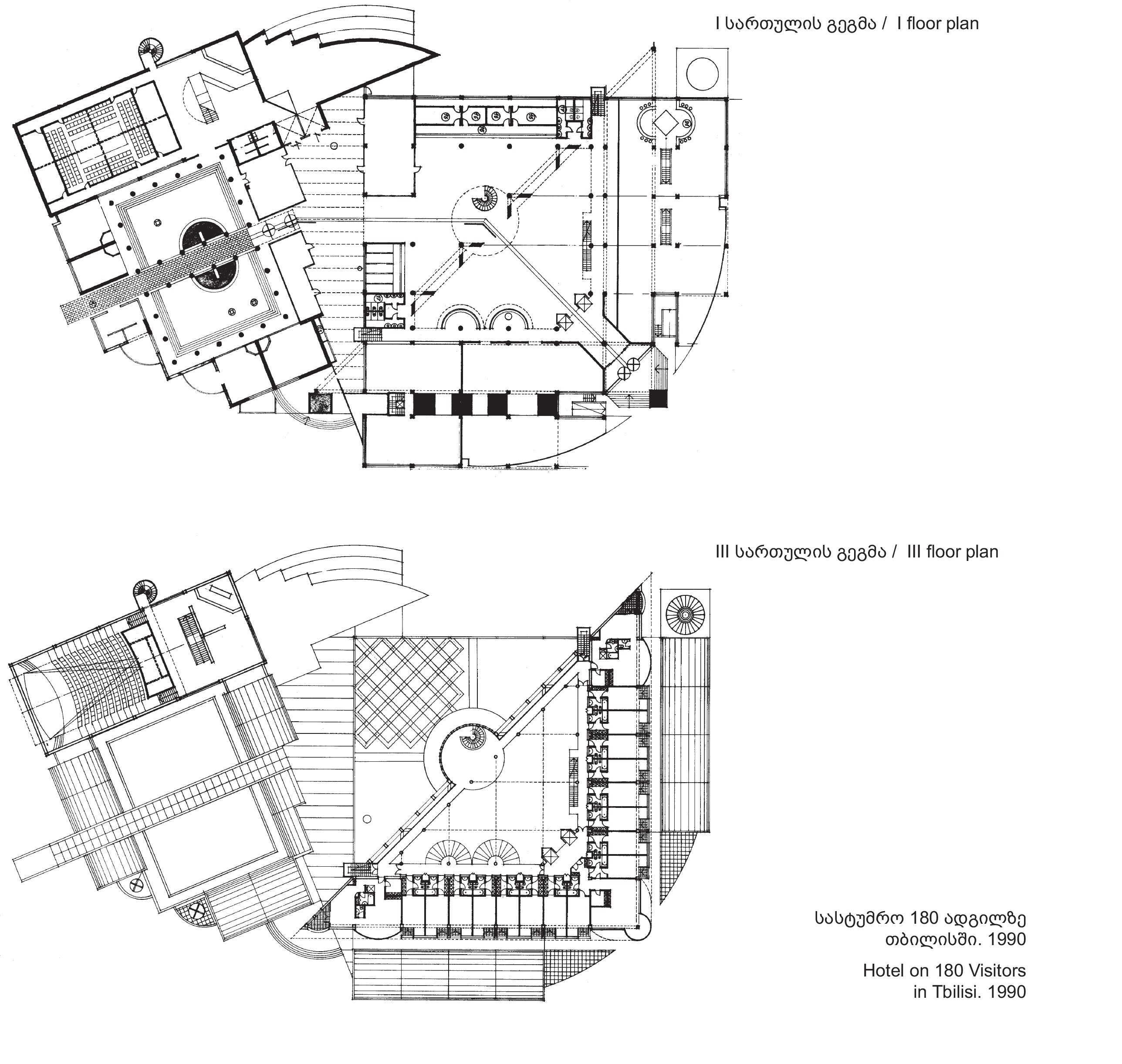
Civil Buildings
01

“While designing civil buildings, for me the most important things are the context of the environment and proportional harmony. This means that a monument/architectural structure does not disrupt its surroundings but becomes naturally integrated into them.”

















































































